|
我们知道地暖和用章鱼式系统的暖气片或踢脚暖都要用到分水器作为供暖水的分流和集回控制中心,为了美观,分水器一般都放在卫生间洗脸池或厨房的橱柜下,由于这些地方的空间都很有限,因此分水器和供暖主管尽量少占地方最好,有的安装师傅根本不为顾客考虑这些问题,在供暖主管与分水器连接处用直阀,占用很大空间,见下图。
上面这样2张照片供暖主管与分水器连接处占用很大的空间,很不合理。
下面给大家介绍一种供暖主管和分水器之间专用的活接弯头,用上它,分水器边上有5cm的距离就够主管安装了,该产品具有安装空间小,不占地方,自带过滤网,安装、拆卸及清洗方便,长期使用不渗漏水,下端活接螺母可以连接PPR管或铝塑管外丝直接或外丝球阀,无论你供暖主管用PPR管还是铝塑管都十分方便连接。我们来看看安装好的照片。
以上两张安装照片中供暖主管用的铝塑管,加上卡套式外丝球阀与活接弯头连接,供暖主管向下,一定都占用墙面空间,测量一下,分水器边上主管占用的空间不到5cm。
这个活接弯头有合肥恒暖暖通研发生产的,它采用H58-3精铜制造,有2种规格,一种里面带过滤网的和一种不带过滤网的,如下图:
(活接弯头HQ1-40不带过滤网、HQ1-41带过滤网)
这个分水器专用活接弯头不仅仅只有不占用空间一个特点,还具有以下特点:
1、1寸加长外丝,可以与任何分水器的内丝主管口连接,特别是那些丝口处有一截没有丝的分水器;
2、三元乙丙的O型密封圈,方便与分水器快速连接;
3、垂直向下的内丝活接,方便与球阀或外丝直接相连,并便宜以后维修冲洗操作;
4、芳纶纤维复合材料的密封垫片,环保、耐高压、耐高温、耐腐蚀、耐老化、挤压不变形、经久耐用,使活接弯头与主管外丝球阀或外丝直接连接后,长期使用不会渗漏水;
5、活接弯头下端可以接铝塑管卡套式外丝球阀或直接,或者接PPR外丝球阀或直接,无论你主管用什么材料,都可以与分水器轻松连接。
6、HQ1-41型号活接弯头内精心设计了过滤网,减少杂质进入采暖系统或壁挂炉,彻底改变了另装过滤器占用空间的状况。备注:集中供暖系统中,带过滤网的活接弯头安装在供水主管与分水器之间,在以燃气壁挂炉作为热源的独立采暖系统,带过滤网的活接弯头安装在回水主管与分水器之间。
7、活接弯头设计小巧,活接螺母向下与外丝球阀或外丝直接之间相连,不占用空间,即使分水器边上只有有5cm长的空间,就可以装得下,以后检修或冲洗十分方面,即使分水器不动,都可以把活接弯头和球阀拆卸下来;
8、活接弯头表面采用本色防腐处理,即使在潮湿的环境下也不会变色氧化;
9、采用国标H58-3精铜精工制造,可以与建筑物同寿命。
这种活接弯头具有以下多种安装使用方法
这种活接弯头与分水器连接一头是1寸加长外丝直接,另一头是3/4内丝活接螺母,方便与供暖主管的外丝直接或外丝球阀连接。具体使用方法如下:
活接弯头+铝塑管卡套式外丝球阀。二者配套组成供暖主管与分水器之间连接的活接角阀,该种使用方法,供暖主管可以是1620铝塑管(用1620*3/4外丝球阀),也可以是205铝塑管(用2025*3/4外丝球阀)。如下图:
(恒尔暖活接弯头+铝塑管卡套式外丝球阀)
二、活接弯头+卡套式外丝直接。在分水器和主管之间无需安装阀门时,用这种方法连接,供暖主管可以用1620铝塑管(用1620*3/4外丝直接)或2025铝塑管(用2025*3/4外丝直接)。如下图:
(恒尔暖活接弯头+铝塑管卡套式外丝直接)
三、活接弯头+PPR外丝球阀,供暖主管用PPR管与分水器之间的连接,供暖主管可以是25或32等规格的PPR管,如下图。
(恒尔暖活接弯头+PPR外丝球阀)
活接弯头+PPR外丝直接。用于PPR、PPR稳态管等供暖主管与分水器之间的连接,供暖主管可以是25或32等规格的PPR管等。在供暖主管与分水器之前不需要安装阀门,用这样方法安装。如下图:
(恒尔暖活接弯头+PPR外丝直接)
总结一下,这个活接弯头和主管之间有4种种连接方式,详见下图:
活接弯头相关技术参数:
材质:HPB58-3黄铜
型号及对应重量:HQ-40重量:162 g(不带过滤网);HQ-41重量:163g(带过滤网)
标配:每只免费配1只G3/4芳纶纤维密封垫片和1只外丝端塑料保护帽
包装:每只活接弯头+密封垫片+外丝塑料保护帽一套入一只塑料袋密封包装
颜色:铜本色,保色防腐处理
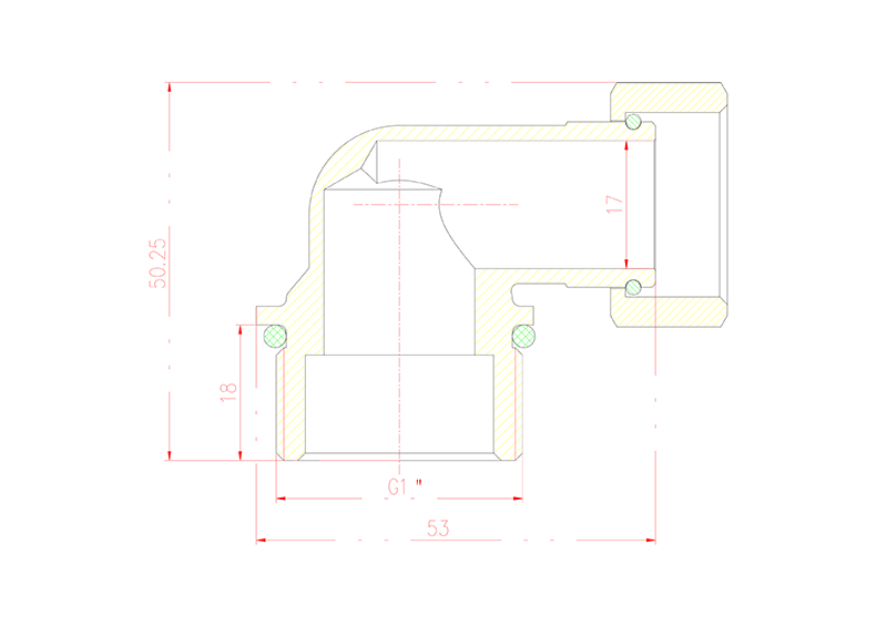
最小处通水内径:17 mm
1寸加长外螺纹长度:18 mm
与分水器连接处密封方式3种:三元乙丙O型圈密封、生料带密封、厌氧胶密封
与外丝球阀(外丝直接)连接处为内丝活接,内丝螺母规格:G3/4(6分)
与外丝球阀(外丝直接)连接处密封:芳纶纤维密封垫片
(恒尔暖活接弯头规格尺寸图)
|